Bilocale in vendita

Milano, Via Privata Antonio Fontanesi - De Angeli
€ 395.000
Prezzo aggiornato
2 locali 2 locali
89 Mq 89 Mq
1 bagno 1 bagno

Bilocale in vendita

Milano, Via Privata Antonio Fontanesi - De Angeli

Descrizione annuncio

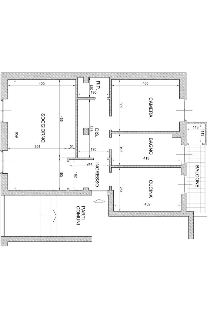
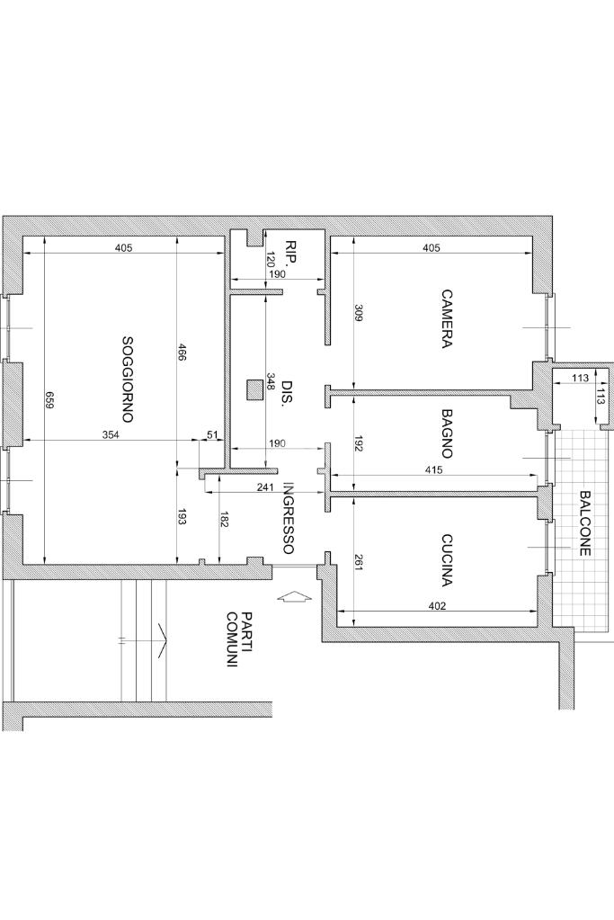
VIA PRIVATA ANTONIO FONTANESI/VIA TRIVULZIO – In prossimità di Piazzale Gambara e Piazza De Angeli, proponiamo in vendita ampio bilocale di 89mq trasformabile in un comodo trilocale.
L’appartamento è composto da ingresso, ampio soggiorno, cucina abitabile con balcone verandato, servizio con box doccia e vasca da bagno, camera matrimoniale e ripostiglio. Completa la proprietà una cantina di pertinenza. Possibilità di acquistare il posto auto ad un prezzo aggiuntivo di €40.000,00.
Il sistema di riscaldamento è centralizzato con termosifoni, impianto di condizionatore autonomo presente in tutti gli ambienti.
Inserito in un contesto anni 80, il bilocale è situato al piano rialzato e gode di una doppia esposizione, esterna e interna.
La zona risulta molto comoda perché ben servita sia dai mezzi di superficie (autobus 90-91-63-80 tram 16) sia dalla metropolitana M1 (linea rossa fermata Gambara e De Angeli, che in pochi minuti collegano il centro della città; nelle immediate vicinanze di Via Trivulzio si trovano inoltre, bar, ristoranti, scuole, supermercati, farmacie, negozi.
Per qualsiasi chiarimento e per fissare un appuntamento di visita dell'immobile senza impegno non esitate a contattarci allo 02 36567673 o al 351 7317492 dal lunedì al venerdì dalle 9.00 alle 13.00 e dalle 14.30 alle 20.00, il sabato dalle 9.00 alle 13.00.

Mostra tutto

Nelle vicinanze

Trasporto pubblico Trasporto pubblico
Gambara
Gambara
110 m
De Angeli
De Angeli
470 m
Milano Porta Genova
Milano Porta Genova
2,4 Km
Milano Nord Cadorna
Milano Nord Cadorna
2,5 Km
Via Faruffini - Via Correggio
Via Faruffini - Via Correggio
440 m
Ricariche auto elettriche Ricariche auto elettriche
LIDL Milano Bezzi
540 m
Autotecnica 95
710 m
A2A Isola Digitale Piazza Amendola
1,1 Km
A2A AmendolaFiera
1,2 Km
A2A Isola Digitale Pagano
1,3 Km
Scuole Scuole
Scuola secondaria di primo grado Monteverdi
550 m
Scuola Primaria Carlo Dolci
660 m
Scuole
670 m
Scuola elementare Massaua
700 m
Scuola Primaria Novaro e Ferrucci
730 m
Farmacia Farmacia
Oppezzo
260 m
Farmacia
330 m
Farmacia Comunale
550 m
Farmacia Dottoressa Elisa Raviola
560 m
Dott. Grilli
690 m
Ospedali Ospedali
Istituto Scientifico Ospedale San Luca
690 m
Clinica Columbus
1,2 Km
Casa di Cura San Giovanni
1,5 Km
Casa di Cura del Policlinico
1,6 Km
Ospedale FieraMilano
2,0 Km
Supermercati Supermercati
Carrefour
180 m
Punto Simply
200 m
Carrefour Market
410 m
Lidl
560 m
Punto SMA
570 m
Negozi Negozi
Negozi
130 m
Punto Discont
530 m
Parah
560 m
My Auchan
620 m
Cose di ...
680 m
Bar Bar
Simpaty Bar
270 m
Bar Metro
440 m
Baja Lounge Cafe
520 m
De Angeli
550 m
Bar
560 m
Ristoranti Ristoranti
Pizzeria Garden City
140 m
Osteria Al Molo 13
180 m
La collina d'oro
190 m
Ristoranti
230 m
Wu Fusion Milano
300 m
Mostra tutto

Caratteristiche

Rif.:
61134630
Piano:
1 di 6 con ascensore (Piano terra)
Box:
1
Balconi:
1
Camere da letto:
1
Arredamento:
Assente
Mostra tutto
Prezzo Prezzo
€ 395.000
Rata mutuo Rata mutuo
€ 1.861 / mese
Spese annue Spese annue
€ 2.400
Proponi il tuo prezzoProponi il tuo prezzo

Classe Energetica

G
G
G
G
G
G
G
G
G
EP globale non rinnovabile:
197.00 kW h/m² anno
EP globale rinnovabile:
197.00 kW h/m² anno
EP invernale del fabbricato:
EP estiva del fabbricato:
Anno di costruzione:
1980
Riscaldamento:
Centralizzato
Tipo impianto:
A radiatori
Tipo alimentazione:
Metano

Prezzo ridotto di €1 (9%%)

Ti interessa visionare l'immobile?

Fissa un appuntamento  Fissa un appuntamento

Richiedi informazioni

Clicca su Leggi per aprire l'informativa
* Questi campi sono obbligatori

Calcola il tuo mutuo

Semplice e senza impegno
Anticipo

( % )
Mutuo

( % )

pochi semplici passi

inserisci i tuoi dati
Questionario completato
Grazie per aver richiesto un appuntamento senza impegno con un nostro Consulente del Credito e Assicurativo.

Hai inserito correttamente tutti i dati necessari e a breve riceverai una e-mail con un link da convalidare per inviare i tuoi dati.
Affiliato
Immobiliare Mi.ca Sas
Via Rembrandt, 22 20123 Milano (MI)

Il nostro staff


  • Grazia Stefania Fierro
    Coordinatrice

  • Manuela Esposito
    Collaboratrice

  • Nicola Tadolti
    Affiliato

  • Flavio Giacalone
    Affiliato
Via Rembrandt, 22 20123 Milano (MI)
Zona: Gambara-Bande Nere-Rubens-Ranzoni-Trivulzio
Mostra su mappa
Orari: Dal Lunedi al Venerdi dalle 9.00-13.00 14.30-20.00 il sabato mattina dalle 9.30 13.00.
Affiliato
Immobiliare Mi.ca Sas
Via Rembrandt, 22 20123 Milano (MI)

2026 Tecnocasa Franchising S.p.A. - P. IVA 08365160152 - Via Monte Bianco 60/A 20089 Rozzano (MI). Ogni agenzia ha un proprio titolare ed è autonoma. Privacy policy | Policy utilizzo | Cookie policy